Italiano
1.099.000 €

villa singola con piscina

Villa in vendita • Volta Mantovana
Villa unifamiliare con piscina.

Villa unifamiliare con piscina costruita su due lotti al fine di avere la maggior privacy possibile evitando costruzioni a ridosso della proprietà. L’attento uso del solo lato est del lotto ha lasciato oggi a parco il lato ovest che può essere ulteriormente edificato o addirittura venduto singolarmente (non in questa fase. La proprietà non è interessata).
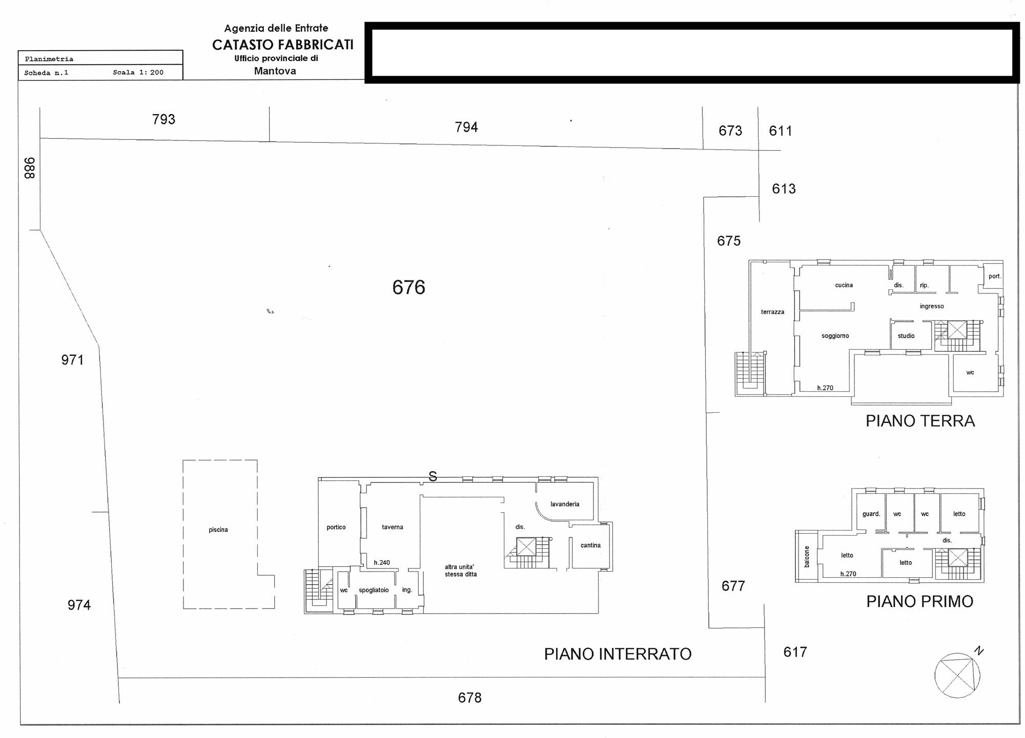
La villa si sviluppa su tre piani dove al piano interrato troviamo i locali destinati alle tre autorimesse, ai locali lavanderia, bagno e taverna che si affaccia direttamente sul portico dotato di ampio barbecue in muratura.
Al piano giorno troviamo l’ampio ingresso principale, lo studio, il soggiorno, la cucina e un bagno. Il soggiorno gode di una grande luminosità poichè dotato di ampia vetrata che affaccia direttamente su una grande terrazza coperta che a sua volta domina dall'alto la piscina.
Il piano primo o piano notte ospita tre stanze da letto, due bagni, una cabina guardaroba.
L’accesso ai vari livelli della casa è servito anche da ascensore interno. Adatta quindi anche a persone con disabilità.
L'abitazione è dotata di impianto di riscaldamento autonomo attraverso caldaia a condensazione, impianto di aspirazione polveri, climatizzazione ed allarme,
Il parco prospiciente alla casa ospita la grande piscina di circa 65 metri quadri.
Il lotto libero, oggi tutto piantumato e destinato a parco misura 1200 metri circa e come già detto ha destinazione residenziale.
Volta Mantovana oltre ad essere zona collinare di pregio si offre come antagonista del basso Garda vista la poca distanza che la separano dal casello di Peschiera d/G e di Sirmione.
Caratteristiche principali
Codice
V000302
Città
Volta Mantovana
Categoria
Villa
Prezzo
1.099.000 €
Locali
14
Camere
3
Bagni
4
Mq
445
Box
3
Posti auto
3
Mq Giardino
1200
Balconi
2
Terrazzi
1
Classe energetica
D
Stato Immobile
Buono
Grado
Signorile
Posizione
Collina
Panorama
Vista Aperta
Giardino
Privato
Arredi
Solo Cucina
Tipo Soggiorno
Doppio
Tipo Cucina
Abitabile
Riscaldamento
Autonomo
Tipo Riscaldam.
Caldaia a Condensazione
Acqua Calda
Autonoma
Infissi
Legno Doppio Vetro
Serramenti
Ottimo
Persiana
Oscurante Legno
Pavim. Giorno
Cotto
Pavim. Notte
Parquet
Pavim. Cucina
Cotto
Pavim. Bagno
Ceramica
Accesso interno disabili
Pieno accesso
Stato terreno
Libero
Isolamento
Presente

Accessori: Antifurto, Aria Condizionata, Armadio a Muro, Ascensore, Camino, Cassaforte, Cancello Elettrico, Doppi Vetri, Impianto Satellitare, Lavanderia, Piscina, Porta Blindata, Ripostiglio, Tavolini Esterni, Veranda, Video Citofono, Video Sorveglianza, Zanzariere

Richiedi informazioni
Invia
Condividi su
Cookie preference