Italiano
1.200.000 €

capannone già adeguato antisismica

Capannone in vendita • San Pietro in Casale - via Ferrara
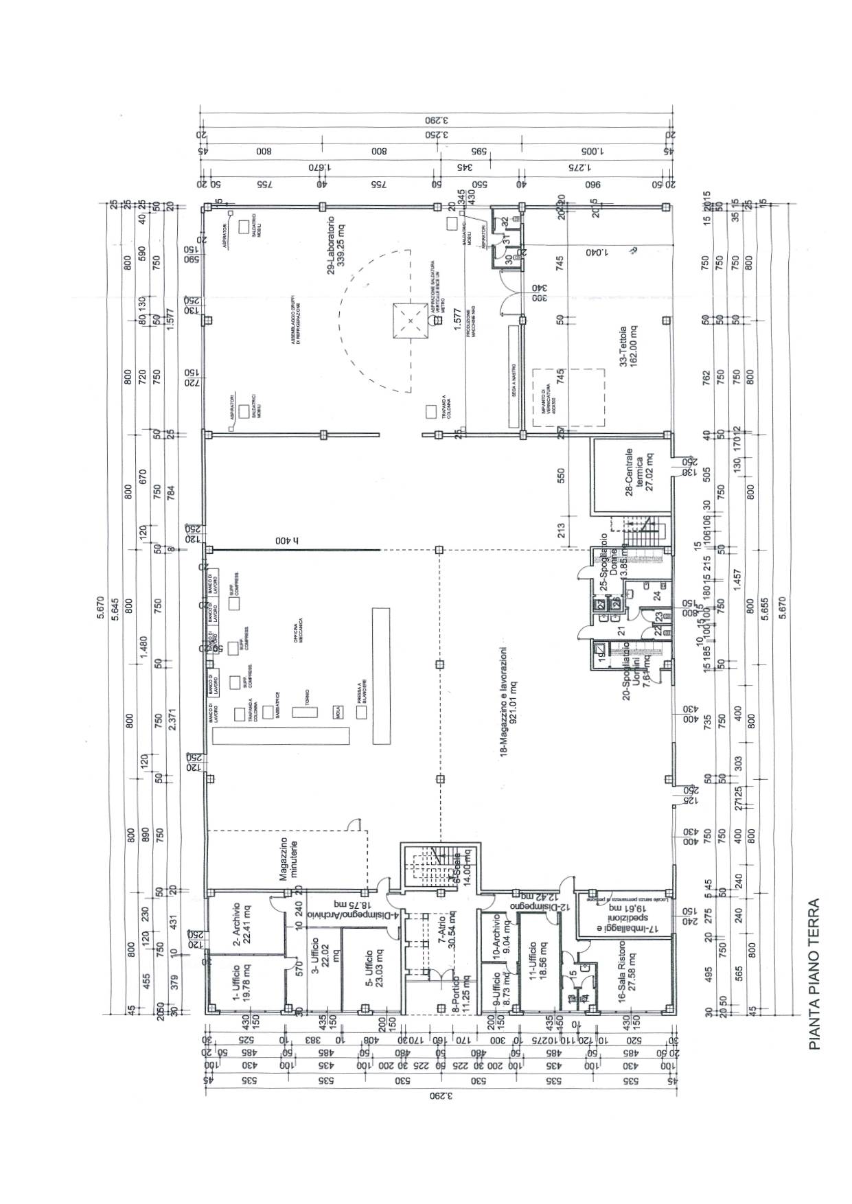
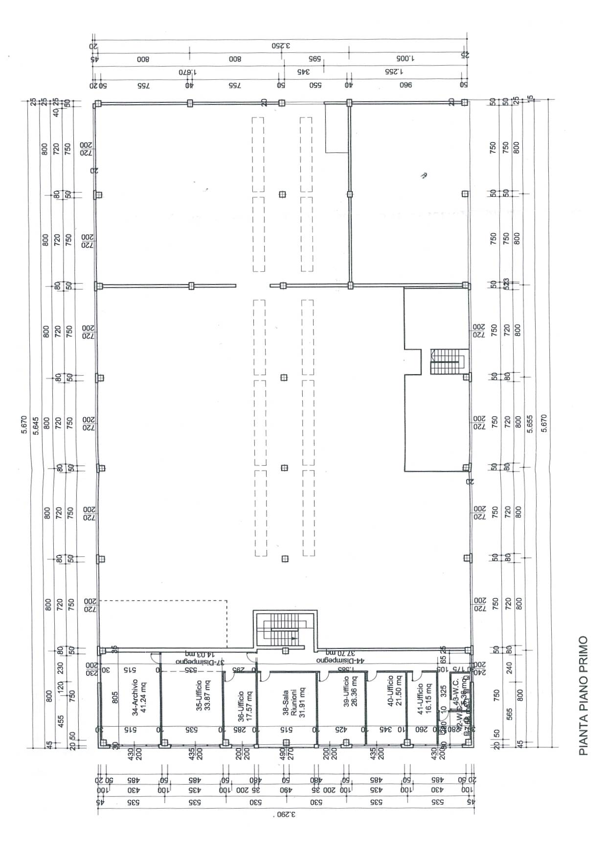
Complesso immobiliare a destinazione d’uso produttivo costituito da metri quadri 1.527,00 per la parte produttiva e metri quadri 600 tra uffici, servizi igienici e spazi di servizio.
L’accesso all’area avviene direttamente dalla pubblica via attraverso passo carraio autonomo.
La struttura è di tipo prefabbricato in cemento armato, pilastri in cemento armato, tegoli e pareti in cemento armato precompresso, pavimentazione in cemento quarzato di tipo industriale. La struttura è già stata adeguata ai criteri antisismici imposti dalla Regione Emilia Romagna.
L'immobile è riscaldato ad aria, è presente aria compressa e sistemi di aspirazione. I piazzali consentono movimentazioni di autoarticolati.
Gli uffici sono arredati e riscaldati/raffrescati autonomamente. Dotato di impianto di allarme.
La posizione è collocata a soli 7 km dal casello A13 di Altedo.
Caratteristiche principali
Codice
V000311
Città
San Pietro in Casale
Categoria
Capannone
Prezzo
1.200.000 €
Locali
22
Mq
2000
Classe energetica
E
Stato Immobile
Ottimo
Posizione
Periferia
Panorama
Vista Aperta
Lati Liberi
4
Riscaldamento
Autonomo
Tipo Riscaldam.
Pompa di Calore
Acqua Calda
Autonoma
Infissi
Alluminio Doppio Vetro
Serramenti
Ottimo

Accessori: Antifurto, Aria Condizionata, Armadio a Muro, Bagno Handicap, Cassaforte, Cancello Elettrico, Locale Fumatori, Parco Condominiale, Passaggio Automobilistico, Rete Dati, Ripostiglio

Mappa
via Ferrara , San Pietro in Casale (BO)
Richiedi informazioni
Invia
Condividi su
Cookie preference